Eladó iroda/üzlethelyiség Budapest XI. ker 61 990 000 Ft

Leírás

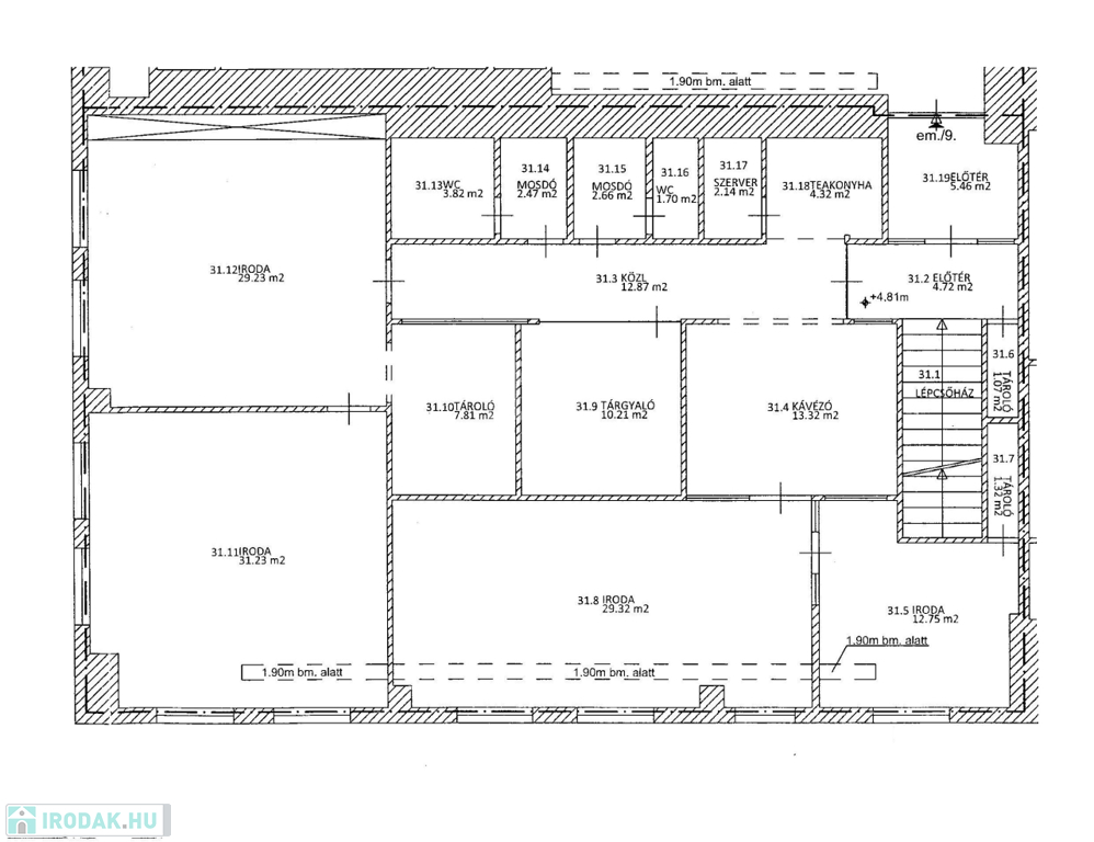
Budapest XI. kerület, Albertfalván, a budafoki út közelében, ipari területen lévő 192 m2-es felújított irodahelyiség 1/2 tulajdonjoga eladó!
Az ingatlan rendezett jogi háttérrel (társasház önálló helyrajzi számú irodákkal, saját mérők), délkeleti tájolással és saját parkolóval rendelkezik. Elsőrendű autós és teherautós közlekedési kapcsolat. 2020-ban felújításon esett át (vezetékek, burkolatok, nyílászárók, beépített konyha) riasztóval és valamennyi helyisége klímával van felszerelve. Közlekedési szempontból az iroda páratlan lehetőségeket nyújt. Az MO körgyűrű csomópontja mindössze 2 km-re, a 6-os főút 1000 méterre található, míg az M1 és M7 közös bevezető szakasza 5 km-re helyezkedik el. A Rákóczi híd budai hídfője 3 km-re van, és a repülőtér autóval 50 perc alatt elérhető. A közlekedés még egyszerűbbé válik, hiszen a 33,133E buszok az épület előtt állnak meg, míg további busz- és villamosjáratok mindössze 5-10 perces sétával elérhetők.

Iroda/üzlethelyiség részletei

Ár: 61 990 000 Ft
Méret: 96 négyzetméter
Azonosító: 11574851
Irodai azonosító: 388858
Cím: Hunyadi János út
Jelleg: iroda

Egyéb jellemzők

  • Garázs
  • Lift
  • Parkoló

Térkép


Így keressen irodát négy egyszerű lépésben. Csupán 2 perc, kötelezettségek nélkül!

Szűkítse a irodák
listáját
Válassza ki a megfelelő
irodát
Írjon a hirdetőnek
Várjon a visszahívásra