Eladó iroda/üzlethelyiség Csorna 42 665 000 Ft

Leírás

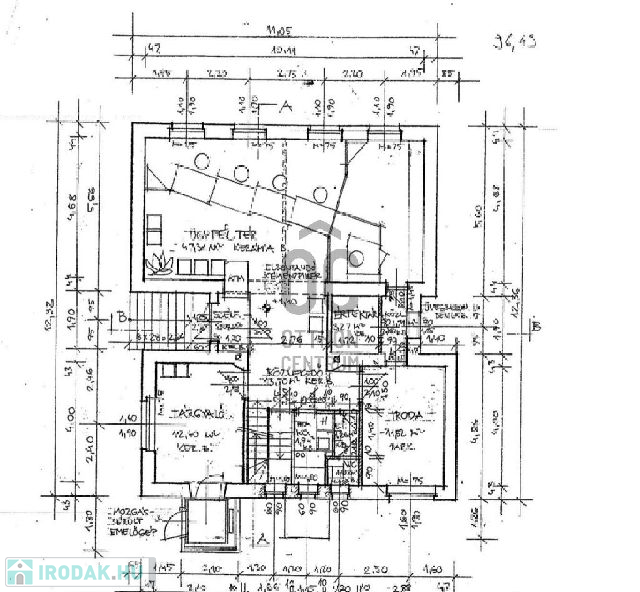
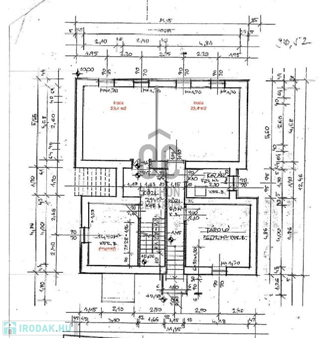
Csornán kínálunk eladásra egy volt takarékszövetkezeti épületet, telekkel garázzsal együtt.
A telek 484 négyzetméteres, melyen az épület garázzsal együtt bruttó több, mint 200 nm. Fűtéséről gáz-cirkó kazán gondoskodik. Nyáron a klíma teszi az eredeti ügyfélteret és az irodákat kellemes hőmérsékletűvé. Az épületet 2001-ben korszerűsítették és újították fel, felszerelve műanyag ablakokkal és lifttel.

Az ingatlan főbb jellemzői:
-településközponti elhelyezkedés
-akadálymentesített ügyféltér
-kamera és riasztórendszer
-gáz-cirkó kazán és klímarendszer
-műanyag nyílászárók
-kialakított, térkövezett parkolási lehetőség
AZ ÁR NETTÓ !!! A tulajdonos ÁFÁ- val értékesíti!

Hitelre van szüksége??
Az Otthon Centrum az ország egyik legnagyobb és legmegbízhatóbb hitelközvetítőjeként, teljes körű és díjmentes hitelügyintézéssel, biztosításkötéssel áll rendelkezésére!
Kérje személyre szabott ajánlatunkat Kollégáinktól!

Iroda/üzlethelyiség részletei

Ár: 42 665 000 Ft
Méret: 216 négyzetméter
Azonosító: 11540929
Irodai azonosító: UZ016084
Cím: Győr-Moson-Sopron megye Csorna
Jelleg: iroda

Egyéb jellemzők

  • Lift

Így keressen irodát négy egyszerű lépésben. Csupán 2 perc, kötelezettségek nélkül!

Szűkítse a irodák
listáját
Válassza ki a megfelelő
irodát
Írjon a hirdetőnek
Várjon a visszahívásra