Eladó iroda/üzlethelyiség Debrecen, Belváros, 399 000 000 Ft

Leírás

Debrecen Szívében, a Szent Anna utcán irodaház eladó!

KIVÁLÓ BEFEKTETÉSI LEHETŐSÉG DEBRECEN BELVÁROSÁBAN!!

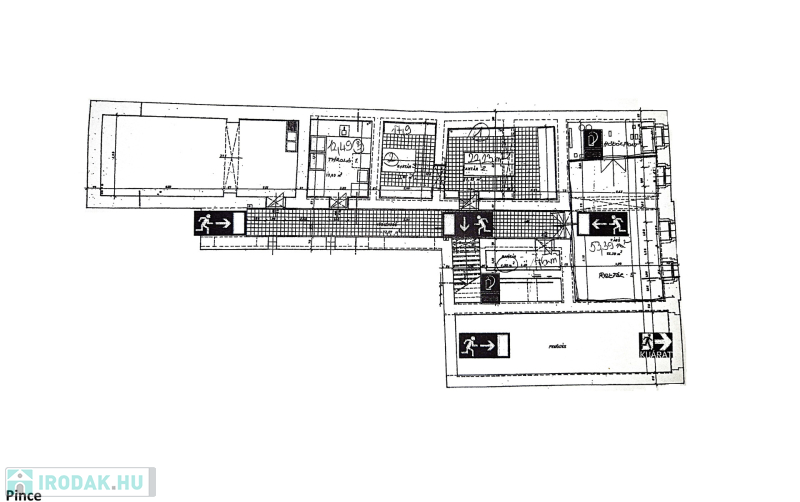
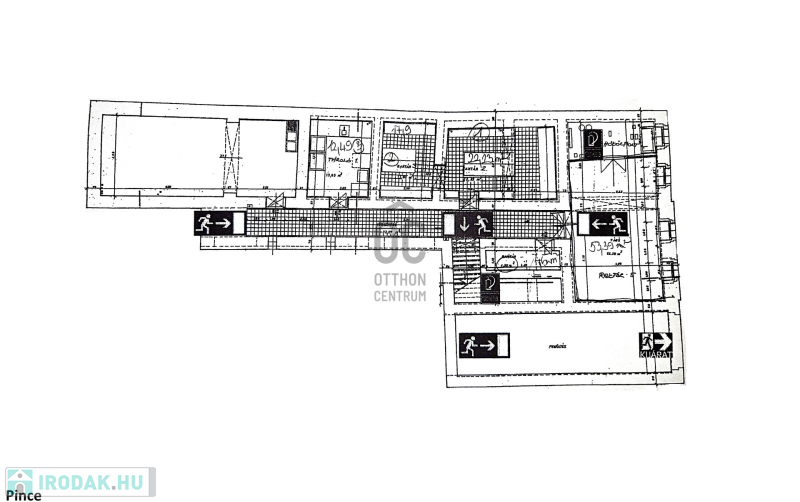
Debrecen belvárosában eladó egy bruttó 960 nm-es irodaház.
Központi elhelyezkedésének köszönhetően számos lehetőség rejlik benne, ezenkívül rendkívüli előnye, hogy könnyen megközelíthető. Iroda található, melyeket jelenleg is folyamatosan bérelnek. Bérlők az új tulajdonostól továbbra is bérbe vennék.
Az irodák 11-75 nm között alakulnak, melyek tégla válaszfallal vannak elválasztva. Egy volt iskola anno, műemlékvédelmi homlokzattal.

Jelenleg irodaházként funkcionál, de ideális lehet szépészeti központnak, orvosi rendelőnek, egészségügyi központnak, társasháznak vagy akár szállodának is. A pincerész jelenleg szabadulószobaként üzemel.

Ingatlan jellemzői:

- Dupla ablakok
- Fűtése-hűtése klímával megoldott, de természetesen gázkazán is rendelkezésre áll, lemez-radiátorokkal
- Minden szinten nő-férfi mosdók
- Műemlékvédett homlokzat
- Hivatalosan is irodaház és üzlet
- Tágas folyosók
- Központi elhelyezkedés
- Felújított homlokzat
- Rengeteg lehetőség.


Amennyiben bármilyen kérdése van, vagy szeretné megtekinteni az ingatlant, kérem hívjon bizalommal!

Iroda/üzlethelyiség részletei

Ár: 399 000 000 Ft
Méret: 960 négyzetméter
Azonosító: 11506589
Városrész: Belváros
Jelleg: iroda

Így keressen irodát négy egyszerű lépésben. Csupán 2 perc, kötelezettségek nélkül!

Szűkítse a irodák
listáját
Válassza ki a megfelelő
irodát
Írjon a hirdetőnek
Várjon a visszahívásra