Eladó iroda/üzlethelyiség Győr 61 194 000 Ft

Leírás


Egyedülálló történelmi környezetben lehet az öné ez a földszinti ingatlan, amely irodai célra is tökéletes befektetési lehetőség. Egy igazi építészeti kuriózum, modern luxussal ötvözve, Győr belvárosának szívében, a Széchenyi tértől és a Dunakapu tértől 30 méterre, ikonikus műemléképületben, teljeskörű felújítással kínálunk eladásra még néhány ingatlant.

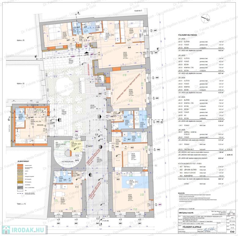
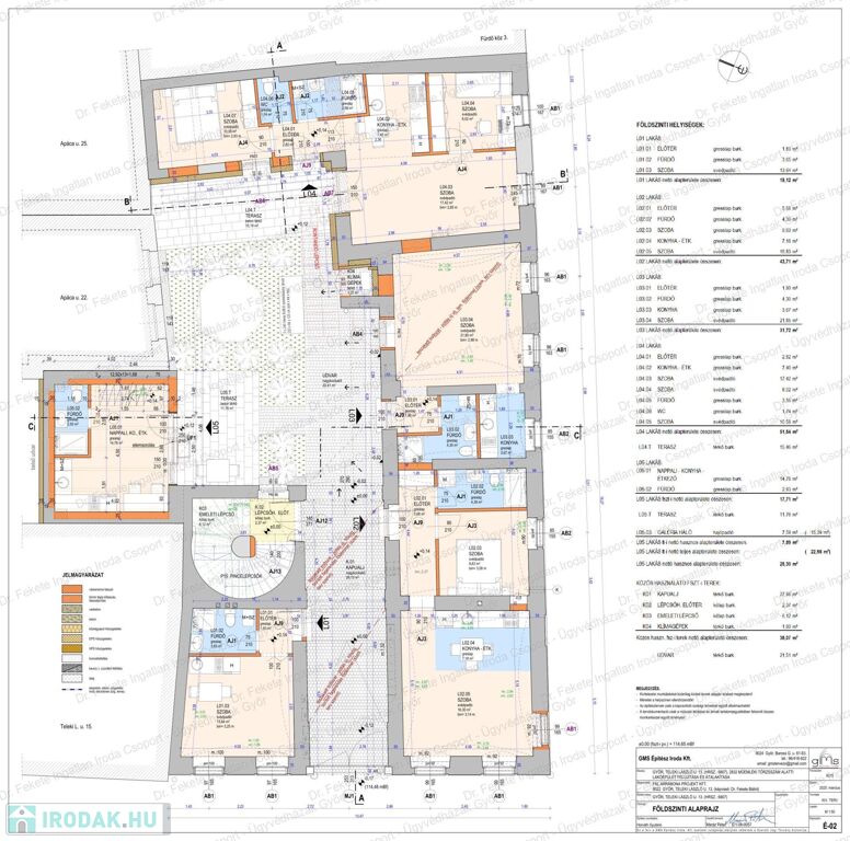
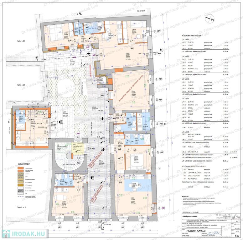
L02: 43,71 nm, földszint, 2 szoba, NY-i fekvés, 2 oldalról világos.

Padlófűtés házközponti rendszerrel, egyedi mérési lehetőséggel

Klíma előkészítés, hogy nyáron is maximális komfortot élvezhessen

Kiváló befektetés, örök érték. 

Átadás: 2025. december 31. fűtéskészen

Megbízható, kiváló referenciákkal rendelkező beruházótól, új építésű apartmanok, lakások, irodák. 

Kulcsrakész befejezés igény szerint, egyedi ajánlat alapján.

Ne maradjon le erről a páratlan lehetőségről – vegye fel velünk a kapcsolatot még ma!

Várom hívását!  Hartmann-né Viki +36 20 481 3369



 

Iroda/üzlethelyiség részletei

Ár: 61 194 000 Ft
Méret: 44 négyzetméter
Azonosító: 11555604
Irodai azonosító: 210600614
Cím: Teleki L02 43,71 nm
Jelleg: iroda

Egyéb jellemzők

  • Lift

Így keressen irodát négy egyszerű lépésben. Csupán 2 perc, kötelezettségek nélkül!

Szűkítse a irodák
listáját
Válassza ki a megfelelő
irodát
Írjon a hirdetőnek
Várjon a visszahívásra