Eladó iroda/üzlethelyiség Miskolc 149 000 000 Ft

Leírás

Miskolc szívében, frekventált és könnyen megközelíthető helyen eladó egy modernizált irodaház teljes emelete. Az ingatlan jelenleg két, funkcionálisan elkülönített egységre tagolt, így ideális választás saját székhelynek és bérbeadásra egyaránt.

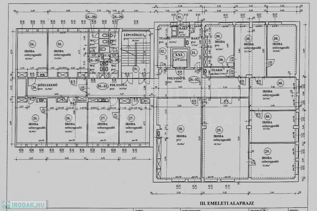
HELYISÉGLISTA ÉS KIALAKÍTÁS
Az ingatlan összesen 16 különálló helyiségből, valamint a hozzájuk tartozó szociális blokkokból (női-férfi WC, mosdó) áll.
A szint jelenleg két fő részre oszlik:
1./ Exkluzív tulajdonosi irodarész (28-32-es egységek, lásd alaprajz): Ez a szárny esztétikus kialakítást kapott, ahol minden adott a professzionális munkavégzéshez:
• Helyiségek: 1 tágas fogadó-váró tér, 4 különálló iroda, 1 nagyméretű előadóterem saját teakonyhával, 2 tárgyaló, irattár és egy dedikált szerverszoba.
• Burkolatok: Padlószőnyeg az irodákban, hidegburkolat a közlekedőkben és vizesblokkokban.
• Extrák: Új fa beltéri ajtók, kiépített riasztórendszer.

2./ Bérlői irodarész (26-27-es egységek, lásd alaprajz): Jelenleg is bérbeadott terület, amely stabil bevételt biztosít.
• Helyiségek: Világos irodák, amelyek laminált padlóval burkoltak.
• Rugalmasság: A két irodarész jelenleg elszeparált, de igény esetén könnyen egybenyitható, így a teljes szint egybefüggő területként is használható.

AZ IRODAHÁZ PARAMÉTEREI ÉS MŰSZAKI ADATAI
Az ingatlan egy 2019-ben felújított irodaházban található, ahol a korszerűsítés az alábbiakra terjedt ki:
• Szigetelés és külső: Teljes tetőszigetelés és homlokzatfestés.
• Gépészet: Új, korszerű kazánrendszer (a fűtés radiátoros hőleadókkal, egyedi hőfokszabályzóval megoldott).
• Kényelem: Modern liftcsere és a közös használatú terek (folyosók, lépcsőház) teljes festése, burkolása.
• Nyílászárók: Minden helyiségben modern, hőszigetelt műanyag nyílászárók találhatók.
• Klíma: Minden helyiség hűtő-fűtő klímával felszerelt a maximális komfort érdekében.
• Szolgáltatások: Portaszolgálat üzemel (H-P) 7:00 és 19:00 óra között.

Gazdaságos fenntartás: A közös költség tartalmazza a fűtés és a vízfogyasztás díját is. Az irodaház stabil gazdálkodású, jelentős megtakarítással rendelkezik.

HASZNOSÍTHATÓSÁG ÉS BEFEKTETÉSI ÉRTÉK
Ez az ingatlan ritkaság Miskolc ingatlanpiacán, mivel több üzleti stratégiához is tökéletes:
• Kombinált használat: Költöztesse cégét a prémium kialakítású tulajdonosi részbe, miközben a másik szárny bérleti díja fedezi a fenntartási költségeket vagy tiszta profitot termel.
• Tiszta befektetés: A teljes szint bérbeadásával (a meglévő bérlőkkel és az üresen álló, magasabb kategóriás résszel) kiemelkedő hozam érhető el.
• Rugalmas bővülés: Ha cége növekszik, a bérlői terület bevonásával bármikor növelheti saját életterét anélkül, hogy el kellene költöznie.

Lokáció: Miskolc belvárosa, kiváló közlekedés, bankok, éttermek és hivatalok közvetlen közelében.

Ne maradjon le erről a kiváló lehetőségről! Tekintse meg az alaprajzot, és hívjon bizalommal a részletekért és a megtekintésért!

Iroda/üzlethelyiség részletei

Ár: 149 000 000 Ft+ÁFA
Méret: 473 négyzetméter
Azonosító: 11599332
Irodai azonosító: 124976
Cím: Miskolc
Jelleg: iroda

Egyéb jellemzők

  • Lift

Így keressen irodát négy egyszerű lépésben. Csupán 2 perc, kötelezettségek nélkül!

Szűkítse a irodák
listáját
Válassza ki a megfelelő
irodát
Írjon a hirdetőnek
Várjon a visszahívásra