Eladó iroda/üzlethelyiség Miskolc 8 900 000 Ft

Leírás


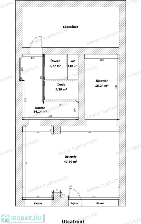
Kínálatunkban szerepel egy jól frekventált, utcafronti üzlethelyiség bérleti joga Miskolc belvárosában, a Városház téren – közvetlenül villamosmegállóval szemben, intenzív gyalogos forgalom mellett.

 

Főbb jellemzők:

- Kiváló elhelyezkedés: Belvárosi környezet, forgalmas, látható helyen

- Utcafronti és udvari bejárat

- Zárt udvari parkoló

- Üresen, rövid időn belül birtokba vehető

- Bármilyen profilú tevékenységre alkalmas



Mi eladó?

- Csak a bérleti jog

   (Nincs árukészlet, cég vagy más egyéb)



Ideális lehetőség:

- Befektetőknek

- Induló vállalkozóknak

- Profilváltást tervezőknek

 

További információért vagy megtekintéshez kérjük, keressen bennünket bizalommal!

„Az ingatlan energetikai besorolásának meghatározása jelenleg folyamatban van.

Iroda/üzlethelyiség részletei

Ár: 8 900 000 Ft
Méret: 87 négyzetméter
Azonosító: 11541598
Irodai azonosító: 698900639
Jelleg: iroda

Egyéb jellemzők

  • Lift

Így keressen irodát négy egyszerű lépésben. Csupán 2 perc, kötelezettségek nélkül!

Szűkítse a irodák
listáját
Válassza ki a megfelelő
irodát
Írjon a hirdetőnek
Várjon a visszahívásra