Eladó iroda/üzlethelyiség Orosháza 24 000 000 Ft

Leírás

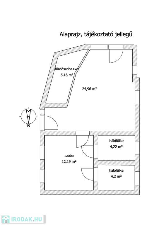
Eladó egy kétszintes ingatlan Orosháza frekventált helyén.
Az épület több tevékenység igényeihez igazítható. Az alsó szinten egy nagyobb helyiség lett kialakítva, amely közvetlen az utcáról és a belső udvarról is megközelíthető. Vele egy szinten főzőpult, kávézópult egy mosdó zuhanyzóval valamint három helyiség lett kialakítva. Egy csigalépcsőn megközelíthető a felső szint. A felső szint belmagassága 2 m.
A hőmérsékletről egy speciálisan kialakított hűtő-fűtő rendszer gondoskodik nagyteljesítményű klímával.

Az ingatlan előtt is van lehetőség parkolni, valamint tartozik hozzá két belső parkoló is.

Amennyiben az ingatlan felkeltette érdeklődését hívjon, beszélgessünk róla, tekintsük meg!
(További képekért és információkért kérem hívjon!)

Iroda/üzlethelyiség részletei

Ár: 24 000 000 Ft
Méret: 61 négyzetméter
Azonosító: 11406634
Irodai azonosító: 110124
Jelleg: Üzlethelyiség

Így keressen irodát négy egyszerű lépésben. Csupán 2 perc, kötelezettségek nélkül!

Szűkítse a irodák
listáját
Válassza ki a megfelelő
irodát
Írjon a hirdetőnek
Várjon a visszahívásra