Eladó iroda/üzlethelyiség Sopron 320 000 000 Ft

Leírás

Befektetők/ vállalkozók figyelmébe ajánljuk ezt a kiváló elhelyezkedésű, modern irodaházat, amely Sopron belvárosában található. Az ingatlan 433 m²-es alapterülettel rendelkezik, és számos funkcionális lehetőséget kínál.

FŐBB JELLEMZŐK:
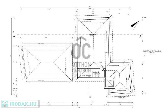
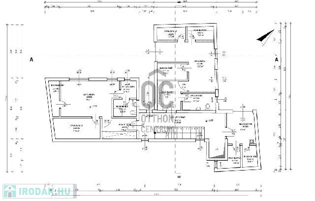
Földszint: 3 férőhelyes fedett gépkocsibeálló és 2 férőhelyes garázs, valamint egy hangulatos, privát 40 m²-es belső udvar.
Emeletek: Az első és második emeleten szintenként 2-2 db 46 m²-es és 1-1 db 22 m²-es terek/egységek kerültek kialakításra.
Tetőtér: 80 m²-es tér, mely szintén további funkcionális lehetőségeket kínál.
Az épületben kialakított, összesen 7 iroda mindegyike víz kiállásokkal rendelkezik.

MŰSZAKI JELLEMZŐK:
Ytong falazat
Geotermikus fűtés
Padlófűtés
Foton műanyag nyílászárók
Lift (6 személyes SCHINDLER)
Az ár kulcsrakész állapotra vonatkozik, a burkolatok és beltéri ajtók választhatók.
A kulcsrakész állapot 6 hónapon belül kivitelezhető.

LOKÁCIÓ:
Az irodaház lépésnyire van a történelmi belvárostól, az újonnan épült piac és a vidéki buszpályaudvar szomszédságában. Központi elhelyezkedése révén kiváló közlekedési lehetőségeket biztosít. Gyalogosan, autóval és tömegközlekedéssel is könnyen elérhető. Amellett, hogy a környezete fejlett infrastruktúrával rendelkezik, az ausztriai határ és az M85-ös autópálya is gyorsan elérhető. Az ingatlanhoz tartozó parkolók mellett, az irodaház közvetlen környezetében is számos parkolóhely került kialakításra.

Várom hívását, és nézzük meg a helyszínen az ingatlanban lévő lehetőségeket!
Ár: 320.000.000,- Ft + ÁFA

Iroda/üzlethelyiség részletei

Ár: 320 000 000 Ft
Méret: 433 négyzetméter
Azonosító: 11399741
Irodai azonosító: UZ017231
Cím: Győr-Moson-Sopron megye Belváros
Jelleg: iroda

Egyéb jellemzők

  • Lift

Így keressen irodát négy egyszerű lépésben. Csupán 2 perc, kötelezettségek nélkül!

Szűkítse a irodák
listáját
Válassza ki a megfelelő
irodát
Írjon a hirdetőnek
Várjon a visszahívásra