Eladó iroda/üzlethelyiség Szeged 129 900 000 Ft

Leírás

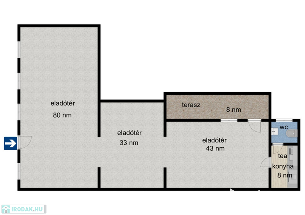
Szeged belvárosában a Feketesas utcán, utcafrontos, kirakatos, 155 nm-es impozáns üzlethelyiség TULAJDON JOGA eladó.
Paraméterek:
- 155 nm hasznos alapterület.
- Egyedi gázfűtés radiátorokon keresztül.
- Az üzletben központi klímarendszer működik.
- Az ingatlan mind esztétikailag mind funkcionálisan fel lett újítva.
- Teljes területén tetszetős hideg burkolattal fedték le.
- Villanyhálózatot teljes mértékben felújították 3X40 A.
- Külső nyílászárók modern hang és hőszigeteltek, kirakatkánt is remekül használhatók.
- Belső nyílászárok is cserélve lettek.
- Kamera rendszer, riasztó, füstjelző berendezés vigyáz az értékeinkre.
- Kialakításra került egy szép irodai konyha rész és toalett is.
- Az ingatlan tehermentes, azonnal birtokba vehető.

Földszinti, utcai bejáratos, kirakattal rendelkező, frekventált helyen megtalálható modern szép ingatlanról beszélünk.
Alkalmas lehet akár üzlethelyiségnek, irodának, szolgáltató egységnek, szinte bármely követelménynek megfelelő lehet.

Bármely kérdés felmerül önben az ingatlannal kapcsolatban, keressen bátran, engem nem tud zavarni!
KUN SZABÓ ZOLTÁN Tel:06 20 9358828
Dél-Magyarországi Régióigazgató.
(További képekért és információkért kérem hívjon!)

Iroda/üzlethelyiség részletei

Ár: 129 900 000 Ft
Méret: 155 négyzetméter
Azonosító: 11537808
Irodai azonosító: 226394
Jelleg: Üzlethelyiség

Így keressen irodát négy egyszerű lépésben. Csupán 2 perc, kötelezettségek nélkül!

Szűkítse a irodák
listáját
Válassza ki a megfelelő
irodát
Írjon a hirdetőnek
Várjon a visszahívásra