Eladó iroda/üzlethelyiség Szeged 265 000 000 Ft

Leírás

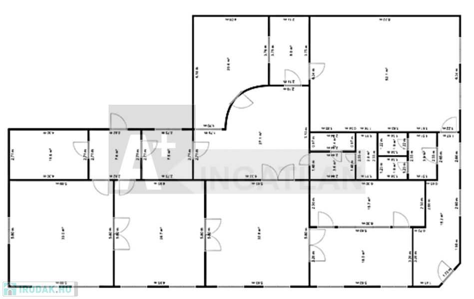
Szeged Dugonics utcában eladó kiváló adottságokkal rendelkező ingatlan.
Jelenleg irodának használják, de lakhatásra is kiváló.
Tulajdoni lapon kivett/ lakóház, udvar .

Az ingatlan főbb paraméterei:
-585 m2 telek
-kb.300 m2 ház
-kb.250 m2 száraz pince
-8 szoba
-belmagasság 3,3-3,86 m
-4 wc
-4 klíma
-gáz-cirkó fűtés kondenzációs kazánnal
-terasz 16 m2
-udvarban 3 fedett autóbeálló

További kérdéssel forduljon hozzám bizalommal: Horváth Zsuzsa 06 30 98-30-465

Iroda/üzlethelyiség részletei

Ár: 265 000 000 Ft
Méret: 300 négyzetméter
Azonosító: 11614640
Irodai azonosító: 126515
Cím: Szeged
Jelleg: iroda

Egyéb jellemzők

  • Lift

Így keressen irodát négy egyszerű lépésben. Csupán 2 perc, kötelezettségek nélkül!

Szűkítse a irodák
listáját
Válassza ki a megfelelő
irodát
Írjon a hirdetőnek
Várjon a visszahívásra