Eladó iroda/üzlethelyiség Székesfehérvár 210 000 000 Ft

Leírás

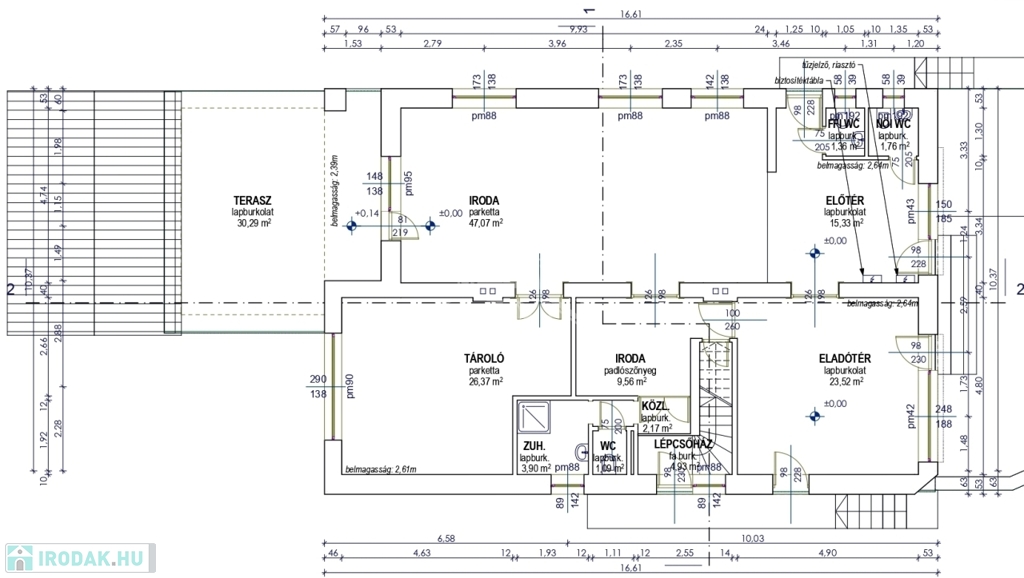
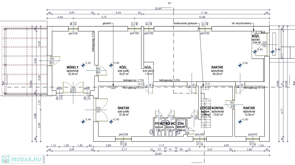
Ip-004389. Budai úton felújított állapotú, 391m2 összalapterületű háromszintes önálló kereskedelmi ingatlan eladó!

Az ingatlan Székesfehérvár forgalmas bevezető útja mellett, közvetlenül egy lámpás kereszteződésben található, kiváló láthatósággal és reklámértékkel rendelkezik, az épület előtt az átmenő autós forgalom jelentős.
Autóval, tömegközlekedéssel és gyalogosan is könnyen megközelíthető, parkolás az ingatlan előtt megoldott, buszmegálló az épület előtt van.

Területkimutatás:
‣ telek: 719m2
‣ alagsor: 168m2
‣ fszt.: 137m2
‣ tetőtér: 86m2 (nappali + 3 szobás lakás)

Jellemzők:
‣ teljeskörűen felújított (esztétikailag és műszakilag is)
‣ riasztó és biztonsági kamerarendszer (belső és külső)
‣ klimatizált helyiségek
‣ tűzjelzőrendszer
‣ szigetelt épület
‣ akadálymentesített
‣ fűtéséről villany és gázkazán egyaránt gondoskodik
‣ 18 kW napelem (H tarifás óra, szaldós elszámolás!)
‣ áramkapacitás 3x32A
‣ fedett gépkocsi beálló az udvarban
‣ több bejárat felől is megközelíthető
‣ elektromos kapu
‣ sajáthasználatú ügyfélparkoló az épület előtt
‣ kiépített elektromosautó töltő

A vegyes funkciójú ingatlan kedvező adottságainak köszönhetően alkalmas lehet szinte bármilyen szolgáltatói, kereskedelmi vagy iroda, illetve rekreációs tevékenységre.


Eladási irányár: 210 M Ft (nem áfás)



Ha felkeltette érdeklődését, hívja irodánkat bizalommal, éljen ingyenes, személyre szabott hitelügyintézés szolgáltatásunkkal. Segítünk továbbá adásvételhez szükséges ügyvédi közreműködésben, energetikai tanúsítvány, valamint értékbecslés elkészítésében.

For English details please send us a message or an e-mail, thank you.

Iroda/üzlethelyiség részletei

Ár: 210 000 000 Ft
Méret: 391 négyzetméter
Azonosító: 11509201
Irodai azonosító: 380654
Cím: Budai út
Jelleg: Üzlethelyiség

Egyéb jellemzők

  • Garázs
  • Parkoló

Térkép


Így keressen irodát négy egyszerű lépésben. Csupán 2 perc, kötelezettségek nélkül!

Szűkítse a irodák
listáját
Válassza ki a megfelelő
irodát
Írjon a hirdetőnek
Várjon a visszahívásra