Eladó iroda/üzlethelyiség Vértesszőlős 379 000 000 Ft

Leírás

Üzlethelyiséget keres Vértesszőlősön?

Komárom-Esztergom vármegye vonzza a turistákat, Vértesszőlős frekventált részén kínálok eladásra egy 1700nm-es üzlethelyiséget!
Nagy átmenő forgalom, hatalmas üvegfelületek, 4 külön-külön is hasznosítható szint! Kell ennél jobb lehetőség?

Vértesszőlős egyik legforgalmasabb főútvonalán, kereskedelmi üzletközpontok (Yisk, Decathlon, McDonald's...stb) szomszédságában keresi új tulajdonosát.
Az ingatlan profi tervek, remek építtető és minőségi anyagok felhasználásával került megépítésre és átadásra 1995-ben.
Többfunkciós kialakításának köszönhetően sokoldalú felhasználhatósággal, kereskedelmi, irodai vagy akár lakhatási lehetőségekkel is bír.
Egy kisebb méretű szolgáltatóközpontként is tökéletesen megállja a helyét!

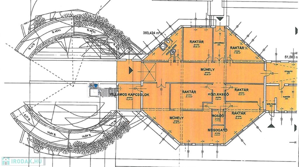
Az üzleti létesítmény főbb részei:
-Bemutatóterem és üzlethelyiség: 100-300m2 között
-Irodák 5-300m2 között
-Szociális helységek 25m2
-Gépjármű szervíz 80-200m2
-Tárolók és raktárak 20-80m2
Természetesen a helyiségek össze is nyithatóak egy nagyobb üzlettér érdekébenA legfelső szinten a lakhatás is megoldható kialakításának köszönhetően. A szinteket egy belső lépcsőház köti össze.

A belső többszintes épület ideális választás szinte minden területre:
-szolgáltató központ
-wellness központ
-fitness központ
-szépségszalon
-orvosi rendelő
-kiskereskedelmi egység
-oktatóközpont
-stb......az elképzelés határtalan

Jöjjön el, nézze meg, lássa meg benne üzleti vállalkozását!

A közelben patika, bevásárlási lehetőség, szupermarketek, közintézmények találhatóak.

Az ingatlan főbb jellemzői:
-1700m2-es ingatlan, 50nm-es erkéllyel(200m2-es vendégtér, 40m2-es iroda és 25m2-es szociális helységek)
-fűtését kombicirkó biztosítja, hűtését klíma, remek rezsiköltséget biztosítva
-parkolási lehetőség az épület körül kiépített, közel 70 férőhelyes parkolóban
-műanyag ablakok thermo üveggel, biztonsági ajtók, elegáns kinézet

Közlekedése és elhelyezkedése szenzációs:
-Főútvonal mellett találjuk buszmegállók közvetlen szomszédságában
-Az M1-es 5 percen belül könnyedén elérhető
-Budapest 45 perc alatt érhető el

Ne hagyja elveszni ezt a páratlan lehetőséget!
Minden nap elérhető vagyok, hívjon, egyeztessünk időpontot az ingatlan megtekintésére!

Irodánkban a következő szolgáltatásokkal állunk meglévő és leendő ügyfeleink rendelkezésére:
-ingatlanközvetítés (díjmentes tanácsadás, kiemelt méretű vevői adatbázis, magas szintű szakmai háttér)
-bank semleges hitelügyintézés vásárlóknak (díjmentes hitelszűrés és tanácsadás)
-adás-vétellel kapcsolatos jogi tanácsadás.
-ingyenes ingatlan közvetítés kereső ügyfeleink részére.
-energetikai tanúsítvány készítése.
(További képekért és információkért kérem hívjon!)

Iroda/üzlethelyiség részletei

Ár: 379 000 000 Ft
Méret: 1 700 négyzetméter
Azonosító: 11497972
Irodai azonosító: 158009
Jelleg: Üzlethelyiség

Így keressen irodát négy egyszerű lépésben. Csupán 2 perc, kötelezettségek nélkül!

Szűkítse a irodák
listáját
Válassza ki a megfelelő
irodát
Írjon a hirdetőnek
Várjon a visszahívásra