Eladó iroda/üzlethelyiség Veszprém 550 000 000 Ft

Leírás

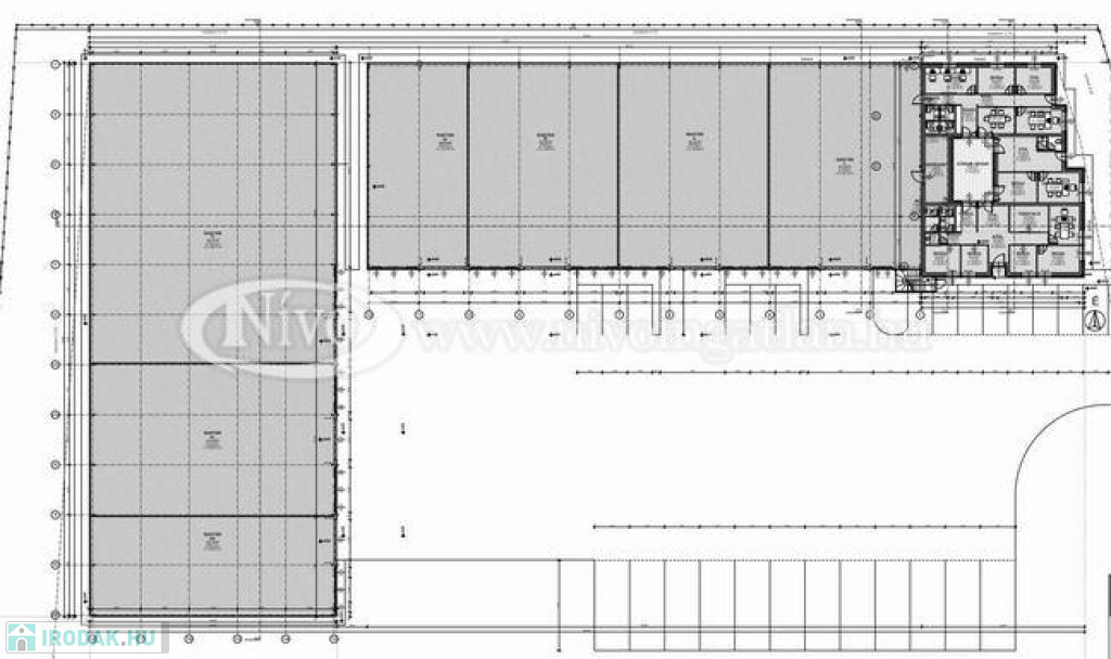
Veszprémben, az É-i körgyűrűnél, a 8-as főúthoz közel, ipari-kereskedelmi-szolgáltató területen, kamionnal is jól megközelíthető, újszerű, rendezett 8200 m2-es területen, össz. 3100 m2-es telephely irodákkal, csarnokokkal, 95 %-os kihasználtsággal egyben (is) eladó.

A telek összesen 8200 m2-es (egy helyrajzi számmal, a terület használati megosztással megosztható), bekerített, elektromos beléptetős kapuval ellátott, összközműves, parkosított, térkövezett, felszíni parkolókkal ellátott.

2. csarnoképület: 1350 m2-es, 3 részre tagolt csarnok
- 3 db elektromos kapuval, 4 m széles, 5 m magas, szekcionált személyi bejárattal ellátott.

Az ingatlan ára (2. csarnoképület): 550 millió Ft + ÁFA (Fordított ÁFA-val vételi lehetőség).

A területen még az alábbi önálló egységek találhatóak (mindegyik ingatlanrész külön albetétesítésre került):

1. csarnoképület ("A"): 1150 m2-es, jelenleg 4 részre tagolt csarnok, de szükség esetén máshogy is tagolható.
- 4 db elektromos kapuval, 4 m széles, 5 m magas, szekcionált személyi bejárattal ellátott.

A csarnoképületek összesen 2500 m2, szendvicspanelből épültek, szigetelt, de hidegcsarnokok. Minden egységben közműfelállás biztosított (akár iroda vagy vizesblokk is kialakítható), targoncázható ipari betonnal, műgyantával burkolt padlóburkolat. Belmagasság: 6 m (Gerincmagasság: 9 m).

Az irodaépület ( 1. csarnoképülethez csatlakozik), külön albetét: téglából épült, alapterülete: 300 m2, a két szint összesen 600 m2.

- A földszinten 3 db iroda ,,apartman” saját szociális-blokkokkal és teakonyhával került kialakításra.
- Az iroda ,,apartmanok” külön bejárattal megközelíthetőek.
- A földszint oszlopszerkezetes így a terek válaszfalakkal alakíthatóak.
- Az irodaépület akár egy terűvé is alakítható, így akár üzletnek, demóteremnek, bemutatóteremnek a kialakítása is lehetséges.
- Az emelet szintén külön megközelíthető, jelenleg egy légtér, de alakítható.
- Az irodák fűtése-hűtése: Split klímákkal megoldott.
- Minden közmű almérővel felszerelt, önállóan mért.


A telephely egyben, de külön-külön egységenként is eladó.

A telephely 95 %-ban hasznosítva van, így kiválóan alkalmas befektetésnek is.



Várjuk megtisztelő jelentkezését, szívesen állunk rendelkezésére!


Keresünk és kínálunk eladó és bérbeadó ingatlanokat, albérleteket Veszprém, Balaton, Bakony, Káli-medence régióban.
Ügyeleti telefonszámunk: .
A Nívó Ingatlanforgalmi Szakértői Iroda teljes eladó és bérbeadó ingatlan és albérlet kínálatát megtekintheti a oldalunkon.

Irodai azonosító kód: N4759 Nívó ingatlan: N4759

Iroda/üzlethelyiség részletei

Ár: 550 000 000 Ft
Méret: 1 350 négyzetméter
Azonosító: 11473614
Cím: 8200 Veszprém, Kőbánya utca 2.
Jelleg: iroda

Egyéb jellemzők

  • Parkoló

Így keressen irodát négy egyszerű lépésben. Csupán 2 perc, kötelezettségek nélkül!

Szűkítse a irodák
listáját
Válassza ki a megfelelő
irodát
Írjon a hirdetőnek
Várjon a visszahívásra