Kiadó iroda/üzlethelyiség Budapest IX. ker 2 700 000 Ft

Leírás

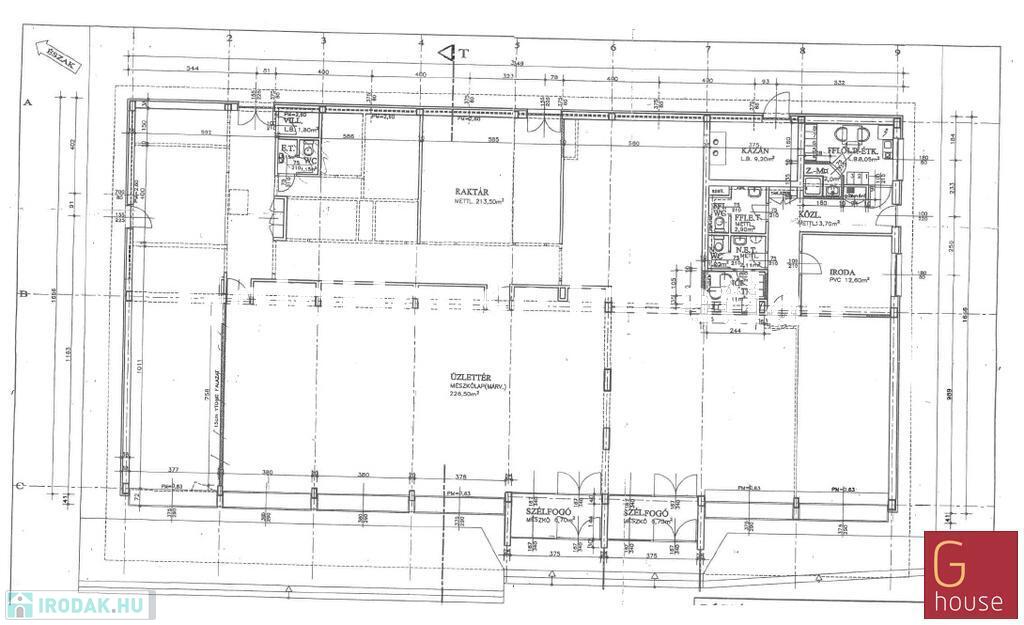
Mester utcában 530 nm-es önálló épület/áruház kiadó

Áruháznak, fitness teremnek, irodának, bemutatóteremnek, orvosi rendelőnek, rendezvényteremnek, vendéglátásra is kialakítható.

Telek mérete: 737 nm. 2 főbejárat és a ház oldalsó és hátsó frontján több személyzeti bejárattal is rendelkezik. Áruszállítás, parkolás megoldható. Az épület kerekesszékkel is megközelíthető.
Tágas üzlettér, raktár, iroda, több mosdó, konyha, tárolók vannak bent. Saját kazán, több légkondi kialakított. Önálló épület, így közös költség nincs.

Tömegközlekedéssel is jól megközelíthető, buszok, villamosok a közvetlen közelben állnak meg.

Bérleti díj: 2,7 M Ft+áfa/hó.

Iroda/üzlethelyiség részletei

Ár: 2 700 000 Ft/hónap
Méret: 530 négyzetméter
Azonosító: 11563856
Irodai azonosító: 14387
Cím: Mester u.
Jelleg: Üzlethelyiség
Helyiségek: 1

Egyéb jellemzők

  • Lift

Így keressen irodát négy egyszerű lépésben. Csupán 2 perc, kötelezettségek nélkül!

Szűkítse a irodák
listáját
Válassza ki a megfelelő
irodát
Írjon a hirdetőnek
Várjon a visszahívásra