Kiadó iroda/üzlethelyiség Budapest VI. ker 8 000 Euro

Leírás

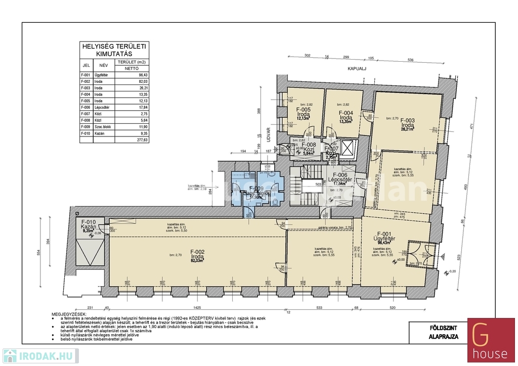
Az Andrássy út közelében az Operaháznál kiadó, egy 702 nm-es, nagy portálos, több tevékenységre alkalmas 3 szintes üzlethelyiség!

Földszinti, utcai bejáratos, utcafrontra több ablakfelülettel rendelkezik.
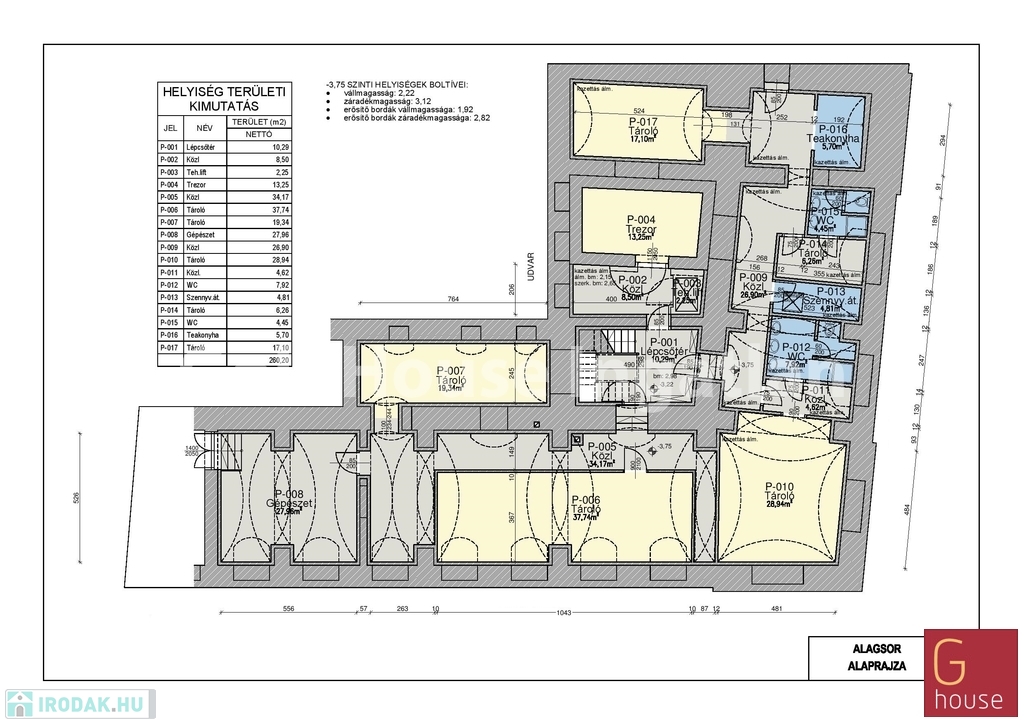
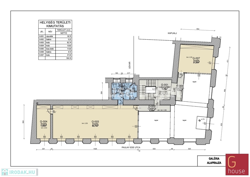
Elosztása: 278 nm földszint, 164 nm galéria és 260 nm pinceszinttel rendelkezik.

Elhelyezkedésének köszönhetően szinte bármilyen tevékenységre alkalmas, kávézónak, üzlethelyiségnek, de kiváló lehet bankfiók, bemutatóterem, cégközpont és szolgáltató tevékenység céljára is!

Közös ktsg: 95.160 Ft/hó. Bérleti díj: 8000 euró+áfa/hó, (kb. 3,4 M Ft+áfa)

Rendkívül jó közlekedés és fejlett infrastruktúra jellemzi, minden főbb tömegközlekedési eszköz is szinte egy karnyújtásnyira megtalálható!

Iroda/üzlethelyiség részletei

Ár: 8 000 Euro/hónap
Méret: 702 négyzetméter
Azonosító: 10291426
Irodai azonosító: 6734
Cím: Operaháznál
Jelleg: Üzlethelyiség
Helyiségek: 1

Egyéb jellemzők

  • Lift

Így keressen irodát négy egyszerű lépésben. Csupán 2 perc, kötelezettségek nélkül!

Szűkítse a irodák
listáját
Válassza ki a megfelelő
irodát
Írjon a hirdetőnek
Várjon a visszahívásra