Kiadó iroda/üzlethelyiség Budapest VII. ker 39 700 Euro

Leírás

Erzsébetvárosi– iskolának, irodaháznak, cégközpontnak alkalmas felújított épület kiadó/eladó

2201 nm-es, földszint+3 emeletes gyönyörű liftes épület. Teljeskörű felújítása 2014-ben volt.
Belső udvara is van, ahol akár 20 gépkocsi is parkolhat.

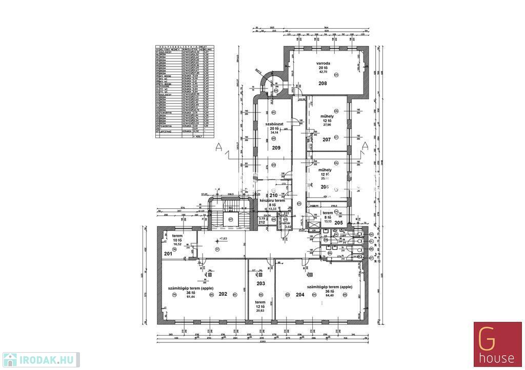
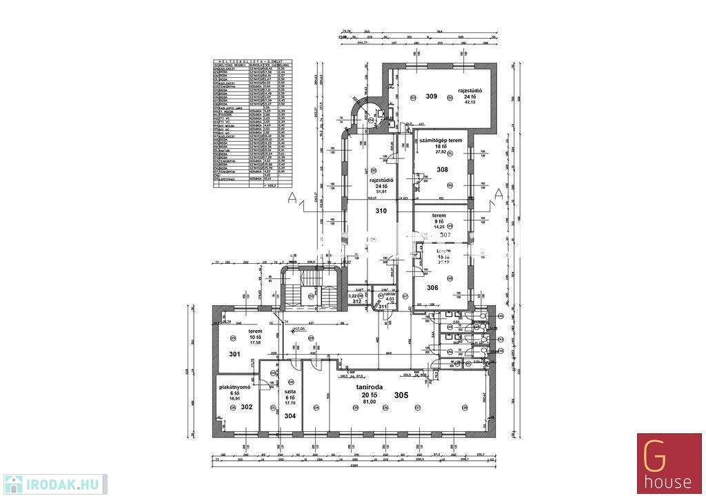
Jelenlegi kialakítása:
Földszint 848 nm: aula/recepció, 9 kisebb-nagyobb terem/iroda 8-56 fős+ 90 fős előadóterem, mosdók, büfé, teakonyhák, tornaterem zuhanyzós öltözőkkel.

1-3. emelet 11-64 nm-es termek, irodák, mosdók, teakonyhák, irattár stb.

Legutóbb iskola üzemelt benne, de hostelnek is átalakítható!

Megközelítése kiváló tömegközlekedéssel is. Keleti-Blaha L. tér, metrók, Rákóczi út 7-es buszok, troli villamos gyorsan elérhetők.

Bérleti díj: 39.700 EUR/hó+áfa. (18 EUR/nm+áfa/hó.) Üzemeltetési díj: 4 EUR/nm+áfa/hó. Kaució: 3 hó. Minimum 5 évre kiadó.

Eladási ár: 6,8 M EUR+áfa. (fordított áfa)

Iroda/üzlethelyiség részletei

Ár: 39 700 Euro/hónap
Méret: 2 201 négyzetméter
Azonosító: 11575679
Irodai azonosító: 14026
Cím: Erzsébetvárosi 3 szintes épület
Jelleg: irodaház
Helyiségek: 1

Egyéb jellemzők

  • Lift

Így keressen irodát négy egyszerű lépésben. Csupán 2 perc, kötelezettségek nélkül!

Szűkítse a irodák
listáját
Válassza ki a megfelelő
irodát
Írjon a hirdetőnek
Várjon a visszahívásra