Kiadó iroda/üzlethelyiség Budapest XIII. ker 390 000 Ft

Leírás

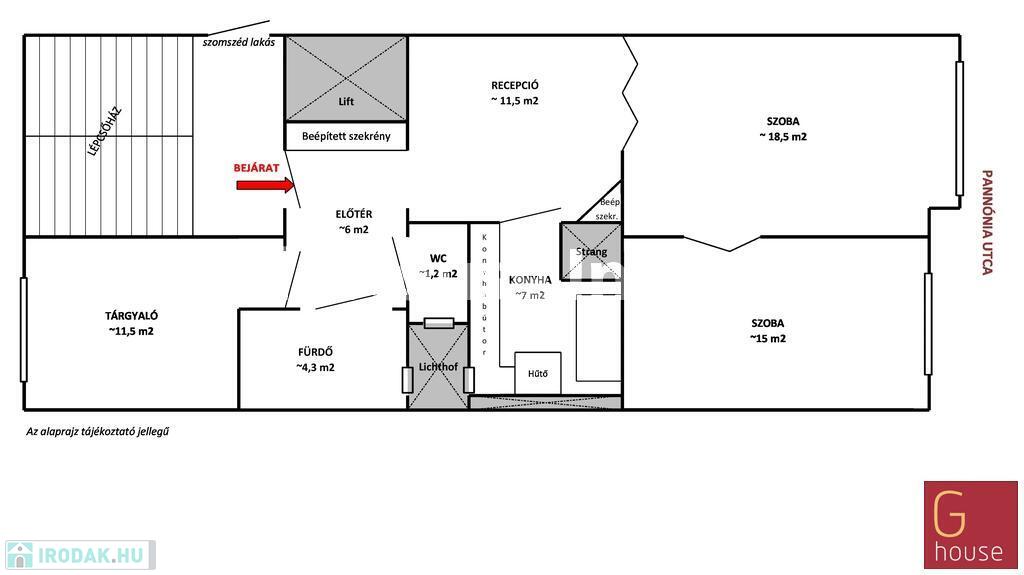
Stílusos, felújított iroda–lakás kiadó Újlipótváros szívében!

Újlipótváros egyik legkedveltebb utcájában, rendezett, liftes társasházban kínálunk bérbe egy felújított, II. emeleti, világos ingatlant, amely irodának és lakásnak egyaránt ideális.

Az ingatlan mind utcai, mind udvari nézetű, így a terek egyszerre világosak és csendesek. Két klíma gondoskodik a komfortos hőmérsékletről az év minden napján.
A házban jelenleg a teljes elektromos hálózat korszerűsítése zajlik, ami a jövőbeni bérlő számára modern, biztonságos működést garantál.

A belső terek ízlésesen felújítottak, jól tagoltak, könnyen alakíthatók több funkcióra is — irodai munkavégzésre, rendelőnek, tanácsadói tevékenységre vagy akár elegáns otthonnak is kiváló választás.

Bútorozatlanul kiadó, de igény esetén a berendezés megbeszélés tárgyát képezheti.
Rezsije mérőórák alapján fizetendő, átlátható, takarékos fenntartás mellett.
Közös költség: 25.000 Ft/hó
KAT 5-ös rendszer kiépítve, azonnal használható internetkapcsolattal.
Bérleti díj: 390.000 Ft/hó
Kaució: 3 hónap
Közjegyzői nyilatkozat szükséges

A környék infrastruktúrája kiváló – karnyújtásnyira található a Duna-part, a Pozsonyi út kávézói, éttermei, valamint a Westend City Center és több tömegközlekedési csomópont (M3, 75-ös, 76-os troli, 15-ös busz).

Ha egy igényes, könnyen megközelíthető, presztízsértékű helyen szeretne dolgozni vagy élni, ne habozzon – hívjon, amíg elérhető, örömmel megmutatom!

Iroda/üzlethelyiség részletei

Ár: 390 000 Ft/hónap
Méret: 75 négyzetméter
Azonosító: 11571220
Irodai azonosító: 13017
Cím: Újlipótváros
Jelleg: iroda
Helyiségek: 3

Egyéb jellemzők

  • Lift

Így keressen irodát négy egyszerű lépésben. Csupán 2 perc, kötelezettségek nélkül!

Szűkítse a irodák
listáját
Válassza ki a megfelelő
irodát
Írjon a hirdetőnek
Várjon a visszahívásra