Kiadó iroda/üzlethelyiség Salgótarján 260 000 Ft

Leírás

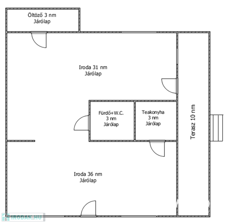
Nógrád megye, Salgótarján (Belváros), utcai bejárattal rendelkező, 76 nm-es, felújított, klimatizált, kamera -és riasztórendszerrel ellátott, korszerű üzlethelyiség hosszú távra kiadó!

Az ingatlan a város forgalmas részén, a Füleki úton található, bármilyen kereskedelmi vagy szolgáltató tevékenység folytatására maximálisan alkalmas lehet.

Az ingatlanban üzlettér, teakonyha, zuhanyzós fürdőszoba és öltöző található.

A bérleti szerződés feltétele 2 havi kaució és 1 havi bérleti díj megfizetése.
(További képekért és információkért kérem hívjon!)

Iroda/üzlethelyiség részletei

Ár: 260 000 Ft/hónap
Méret: 76 négyzetméter
Azonosító: 11500196
Irodai azonosító: 845383
Jelleg: Üzlethelyiség

Így keressen irodát négy egyszerű lépésben. Csupán 2 perc, kötelezettségek nélkül!

Szűkítse a irodák
listáját
Válassza ki a megfelelő
irodát
Írjon a hirdetőnek
Várjon a visszahívásra