Kiadó iroda/üzlethelyiség Szekszárd 127 000 Ft

Leírás

Kiadó irodák a város szívében!

Szekszárd belvárosában, az Arany János utcában különböző méretű irodák kiadók.
A hirdetésben szereplő, I. emeleten található 2db iroda más, egyéb hasznosításra is alkalmas, ezek az irodák egybe nyithatóak, alapterületük 48 m2.
A helyiség oktató teremként, irodaként is funkcionálhat.
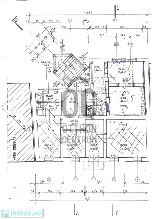
Az alaprajzon a hirdetett iroda a 4-es és 5-ös számú egyben.
Az irodákhoz melegítő konyha, mosdó és toalett tartozik.
Fűtése távfűtés, amelyet a rezsi tartalmaz.
Rezsije 10.000 forint havonta.
Az iroda klimatizált, ablakai hőszigetelt műanyagok, a hátsó parkolóra néznek, így csendes.

A bérlő autóját az irodaépület mögötti közterületi parkolóban helyezheti el.
Amennyiben a város forgalmas részén szeretné megnyitni új irodáját, oktatótermét, kérem keressen, nézzük meg együtt ezt a nagyszerű lehetőséget.

Belváros, kiadó iroda, OC UZ018286

Iroda/üzlethelyiség részletei

Ár: 127 000 Ft/hónap
Méret: 48 négyzetméter
Azonosító: 11502611
Jelleg: iroda

Így keressen irodát négy egyszerű lépésben. Csupán 2 perc, kötelezettségek nélkül!

Szűkítse a irodák
listáját
Válassza ki a megfelelő
irodát
Írjon a hirdetőnek
Várjon a visszahívásra